Karakterwoning met tuin vlakbij Canal du Midi
Ontdek deze lichte en ruime vrijstaande woning vol karakter, gelegen in een typisch dorp aan het Canal du Midi.
Pluspunten:
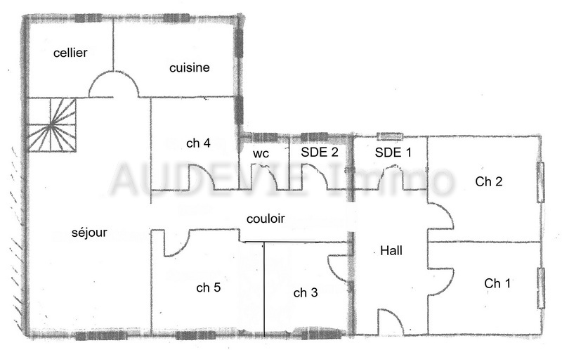
- 5 slaapkamers + 3 extra ruimtes op de verdieping met mezzanine
- Lichte woonkamer en keuken met directe toegang tot de tuin
- 2 doucheruimtes op de begane grond
- Afgesloten tuin van 1.200 m² met eeuwenoude olijfbomen, vijgenbomen, moestuin, kippenhok en waterput
- Parkeergelegenheid op eigen terrein
- Behouden originele elementen: cementtegels, decoratieve haarden, binnenschrijnwerk
- Modern comfort: dubbele beglazing, recent geplaatste luiken, houtkachel en verwarmde spiegels
- Energieklasse: C
Praktische Informatie:
- Aangesloten op water, elektriciteit, riolering en glasvezel
- Makelaarskosten inbegrepen
Een lichte, groene en rustige “Zen”-omgeving, ideaal om te leven op het ritme van het Canal du Midi.
Details
Prijs
:
390000 €
Latitude
:
43.27012477079311
Longitude
:
2.872728952392558
Ref nummer
:
3563
Type vastgoed
:
Woning
Labels
:
Exclusiviteit
Statut
:
Beschikbaar
Stad, Regio
:
LE SOMAIL et alentours
Code postal
:
11120
Pays
:
France
Samenstelling van het pand
Buitenruimte
:
1400 m²
Binnenruimte
:
255 m²
Kamers
:
9
Slaapkamers
:
5
Badkamers
:
2
Caractéristiques
Eigenschappen
Parking
Energie diagnose
Energy performance diagnostic
DPE blank
Non-usable consumption
* Of which greenhouse gas emissions
GES blank
Non-usable consumption
Diagnose gemaakt
:
Diagnose gesteld na 1 juli 2021
Montant estimé des dépenses
:
entre 2220 € et 3040 €/an
Informations
Risques
:
*Les informations sur les risques auxquels ce bien est exposé sont disponibles sur le site Géorisques: www.georisques.gouv.fr
























